Brassersplein 14

2612 CT, Delft ( gelegen in de wijk Rijswijk zuid / aan Delft noord vast )

Omschrijving

Penthouse kantoor -269m2 - 7 parkeerplaatsen - Energielabel A++ - te huur welke volledig turn-key te betrekken is !

Het object betreft een representatief kantoorgebouw welke is gelegen op een prominente zichtlocatie langs de rijksweg A13 en direct naast het Business Park ‘Zuidflank’.

Middels de entree is de betreffende verdieping eenvoudig via zowel de lift als de trap toegankelijk. Het kantoor is per direct beschikbaar. Aangezien de ruimte nog is voorzien van een representatieve inrichting met o.a. een vergader serre behoort een snelle ingebruikname tot de mogelijkheden. Indien gewenst kan de ruimte ook in casco gerenoveerde staat worden opgeleverd.

De representatieve kantoorvloer is vrij indeelbaar en door de vele raampartijen genieten deze van voldoende direct daglicht.

Het inbouwpakket/inventaris is ter overname van de huidige huurder, voorwaarden zijn nader te bespreken en het is ook geen verplichting maar wel een hele mooie optie.

BEREIKBAARHEID
Per auto:
Het kantoorgebouw is vanaf de rijksweg A13 (Den Haag – Rotterdam) uitstekend bereikbaar middels de afrit Delft Noord, welke direct voor het pand is gesitueerd. In een aantal autominuten bereikt u het ‘Prins Clausplein’ welke een directe aansluiting geeft met de rijkswegen A4 (Rotterdam - Den Haag - Amsterdam) en de A12 (Den Haag - Utrecht).

Per openbaar vervoer:
Op loopafstand is, naast een bushalte, tevens een halte van de tramlijnen 1 en 19 gelegen. Tramlijn 1 onderhoud een directe verbinding tussen NS Station Delft en NS station Den Haag Hollands Spoor.

BESCHIKBAARHEID
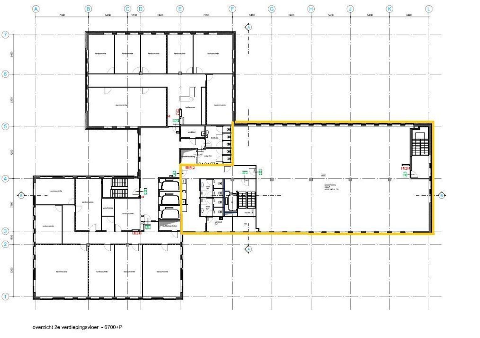
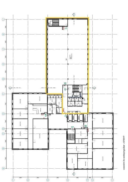
Voor de verhuur is momenteel circa 269 m² v.v.o. kantoorruimte beschikbaar, welke is gelegen op de vijfde verdieping.

PARKEREN
Op het eigen (naast gelegen) parkeerterrein zijn in totaal 7 plaatsen voor de verhuur beschikbaar beschikbaar wat resulteert in een parkeernorm van 1:38.

HUURPRIJS
Kantoorruimte:
€ 135,00 per m² v.v.o. per jaar, te vermeerderen met BTW.
Parkeren:
€ 650,00 per plaats per jaar, te vermeerderen met BTW.

BTW
Verhuurder wenst te opteren voor een met BTW belaste levering. Indien huurder geen BTW kan verrekenen zal de huurprijs met een nader te bepalen bedrag worden verhoogd ter compensatie van het niet kunnen verrekenen van BTW.

SERVICEKOSTEN
De servicekosten zijn als voorschot bij vooruit betaling verschuldigd, op basis van jaarlijkse nacalculatie en bedragen EUR 55,- per m² v.v.o. per jaar en zijn te vermeerderen met BTW. Hiervoor worden de navolgende diensten geleverd;
• onderhoud en periodieke controle van technische installaties en standleidingen;
• onderhoud en periodieke controle van hemelwaterafvoer, goten en daken;
• periodiek onderhoud van E- en W-installaties;
• periodiek liftonderhoud en jaarlijkse liftkeuring door Liftinstituut;
• periodiek onderhoud van riolering en standleidingen;
• periodieke onderhoud van CV-installatie alsmede het verhelpen van storingen;
• tuinonderhoud en onderhoud van parkeerterrein, fietsenstalling en bestrating;
• glasbewassing;
• glasverzekering;
• aansluiting en abonnement (alarm-) meldcentrale;
• klein onderhoud;
• gasgebruik inclusief vastrecht;
• elektriciteitsverbruik inclusief vastrecht;
• waterverbruik inclusief vastrecht;
• Vuilafvoer;
• Ongediertebestrijding;
• Legionella preventie;
• Huismeesterdienst;
• 5% administratiekosten over bovenstaande leveringen en diensten.

OPLEVERINGSNIVEAU
Het kantoorgebouw wordt in de huidige (turn-key) staat opgeleverd (of, in overleg, in gerenoveerde casco + staat), onder andere voorzien van:
• representatieve entree;
• 1 lift;
• luchtbehandelingsinstallatie voorzien van topkoeling;
• systeemplafond voorzien van geïntegreerde verlichting;
• brandmeldinstallatie;
• glasvezelaansluiting;
• te openen ramen;
• zonwerende beglazing;
• kabelgoten ten behoeve/ voorzien van elektra en databekabeling;
• sanitaire voorzieningen per verdieping;
• pantry*;
• huidige vloerafwerking*;
• huidige scheidingswanden*;
• huidige databekabeling*;
• gemeenschappelijke fietsenstalling.

* Deze huurdersvoorzieningen behoren niet tot het gehuurde en zullen om niet worden overgedragen aan huurder.

HUURPRIJSAANPASSING
Jaarlijks, op basis van de wijziging van het maand-prijsindexcijfer volgens de consumentenprijsindex (CPI) reeks ‘CPI-alle huishoudens’ (2015 = 100), gepubliceerd door het Centraal Bureau voor de Statistiek (CBS).

HUURPRIJSBETALING
Per kwartaal vooruit.

HUURTERMIJN
In overleg.

ZEKERHEIDSSTELLING
Bankgarantie ter grootte van 3 kalendermaanden huur en servicekosten, beide te vermeerderen met BTW.

HUUROVEREENKOMST
Huurovereenkomst kantoorruimte en andere bedrijfsruimte in de zin van artikel 7:230a BW conform het model van de Raad voor Onroerende Zaken (ROZ) zoals op 30 januari 2015 vastgesteld en op 17 februari 2015 gedeponeerd bij de griffie van de rechtbank in Den Haag en aldaar ingeschreven onder nummer 15/20, alsmede de daarbij behorende Algemene Bepalingen.

ENERGIELABEL
Energielabel A++.

Kenmerken

Overdracht

Prijs
€ 135 p.m2.p.j
Servicekosten
€ 55
Status
Beschikbaar

Bouw

Hoofdbestemming
Kantoorruimte

Oppervlakten

Totaaloppervlakte
269m²
Units vanaf
269m²

Indeling

Verdiepingen
1
Voorzieningen
Inbouwarmaturen, Liften, Te openen ramen, Kabelgoten, Systeemplafond, Toilet, Pantry, Verwarming, Kamerindeling

Locatie

[ { "address": "Brassersplein 14", "zipCode": "2612 CT", "city": "Delft", "lat": 52.026177, "lng": 4.357351, "heading": 0, "pitch": 0 } ]

Plattegronden

Brassersplein 14, Delft plattegrond-0
Brassersplein 14, Delft plattegrond-1
Brassersplein 14, Delft plattegrond-2
  

Maak een afspraak voor een bezichtiging

vul het onderstaande formulier in en we nemen zo snel mogelijk contact met u op.

Uw bericht is naar ons verzonden. Wij nemen zo snel mogelijk contact met u op.

Sorry, we kunnen helaas niet met zekerheid vaststellen of je een mens of een geautomatiseerde bot/spammer bent. Hierdoor kunnen we het formulier dat je hebt ingevuld niet verzenden. Probeer het opnieuw of neem direct contact op met de makelaar via e-mail.

Er is iets mis gegaan met het versturen van het formulier.
Controleer of u alle velden (goed) heeft ingevoerd en probeer het nog een keer.

Wilt u een bezichtiging plannen?

recaptcha
reCAPTCHA
PrivacyTerms

Liever telefonisch contact?

Wij zijn bereikbaar op werkdagen tussen 8:30 en 17:00 op
015 - 213 51 39.