Paradijspoort 7

2611 MA, Delft ( gelegen in de wijk Binnenstad )

Omschrijving

absolute A1 locatie in het centrum van Delft en is gelegen naast de ingang van de Hema, Cotton Club, WE en jeanscentre en in de nabijheid van verschillende top A1 retailers als: Flying Tiger, Only & Sons, Jack & Jones, en Ici Paris XL.

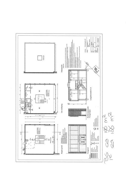
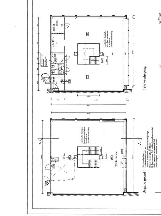
Het gehuurde heeft totaal een oppervlakte van ca. 382 m² b.v.o. gelegen op de begane grond (196m2) en eerste verdieping (186m2)

De winkelruimte heeft een frontbreedte van ca. 9 meter en ca. 6 meter hoog, dus ideaal om uw bedrijf te profileren.

De huurprijs bedraagt € 95.000,-- per jaar, te vermeerderen met de geldende BTW.

HUURTERMIJN

Voorkeur 10 jaar + 5 optie jaren andere termijnen in overleg

OPLEVERINGSNIVEAU

Casco in huidige staat

OPLEVERING

In overleg

HUURBETALINGSPERIODE

Per maand

WAARBORGSOM/BANKGARANTIE

3 maanden + btw

HUURPRIJSAANPASSING

Jaarlijkse verhoging, voor het eerst één jaar na huuringangsdatum, op basis van de wijziging van het maandprijsindexcijfer volgens de consumentenprijsindex CPI-allehuishoudens (2000=100), gepubliceerd door het C.B.S.

HUUROVEREENKOMST

Voor verdere vastlegging zal gebruik gemaakt worden van het standaardmodel van de Raad voor Onroerende Zaken (ROZ), uitgegeven door de Nederlandse Vereniging van Makelaars (NVM).

SERVICEKOSTEN
Huurder dient zelf de aanvraag en betaling voor de benodigde nutsvoorzieningen te verzorgen. Er is een eigen energie aansluiting aanwezig.

BELASTE VERHUUR
Bij het vaststellen van de hoogte van de huurprijs is uitgangspunt geweest, dat huurder het gehuurde blijvend zal gebruiken voor ten minste het bij de wet vastgestelde percentage aan BTW-aftrekgerechtigde prestaties, waarbij kan worden geopteerd voor belaste (ver)huur. Indien de beschikking, op grond waarvan ontheffing is verleend van de vrijstelling tot het verschuldigd zijn van omzetbelasting over de huurprijs mocht komen te vervallen, omdat huurder het gehuurde niet (meer) gebruikt voor ten minste het bij de wet vastgestelde percentage aan aftrekgerechtigde prestaties, dan wordt de kale huurprijs met ingang van de datum waarop de optiebeschikking is vervallen, verhoogd met een nader door de eigenaar te bepalen percentage

Kenmerken

Overdracht

Prijs
€ 249 p.m2.p.j
Status
Beschikbaar

Bouw

Hoofdbestemming
Winkelruimte
Bouwjaar
1971-1980
Onderhoud binnen
Goed
Onderhoud buiten
Uitstekend

Oppervlakten

Totaaloppervlakte
382m²
Verkoopoppervlakte
382m²

Indeling

Verdiepingen
2

Omgeving

Ligging
stadscentrum / dorpskern
Welstandklasse
A1

Locatie

[{"address": "Paradijspoort7","zipCode": "2611 MA","city": "Delft","lat": 52.0100748,"lng": 4.3624048,"heading": 0,"pitch": 0}]

Plattegronden

Paradijspoort 7, Delft plattegrond-0
Paradijspoort 7, Delft plattegrond-1
Paradijspoort 7, Delft plattegrond-2
  

Maak een afspraak voor een bezichtiging

vul het onderstaande formulier in en we nemen zo snel mogelijk contact met u op.

Uw bericht is naar ons verzonden. Wij nemen zo snel mogelijk contact met u op.

Sorry, we kunnen helaas niet met zekerheid vaststellen of je een mens of een geautomatiseerde bot/spammer bent. Hierdoor kunnen we het formulier dat je hebt ingevuld niet verzenden. Probeer het opnieuw of neem direct contact op met de makelaar via e-mail.

Er is iets mis gegaan met het versturen van het formulier.
Controleer of u alle velden (goed) heeft ingevoerd en probeer het nog een keer.

Wilt u een bezichtiging plannen?

recaptcha
reCAPTCHA
PrivacyTerms

Liever telefonisch contact?

Wij zijn bereikbaar op werkdagen tussen 8:30 en 17:00 op
015 - 213 51 39.