Laan van Ambacht 14

2631 RJ, Nootdorp ( gelegen in de wijk Nootdorp )

Omschrijving

Goed onderhouden ruime bedrijfshal met kantoorruimte en eigen parkeerplaatsen. Gelegen op 199m2 eigen grond en zonder VVE, u bent dus echt baas in eigen huis.

Voorzien van elektrische overhead-deur, glasvezel aansluiting, moderne keuken en c.v.ketel voor de verwarming en warm water.

Gelegen op een net kleinschalig industrieterrein vlakbij de kern van Nootdorp en dus voor iedereen goed te bereiken want ook de snelweg afrit is op korte afstand.

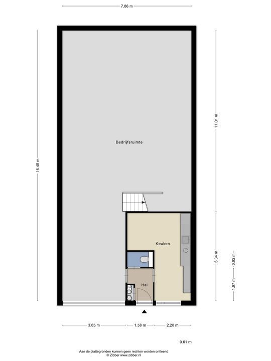
Begane grond:
Entree, kantine/kantoor met keuken. Ruime bedrijfshal met aan de voorzijde een vide naar de 1e etage zodat u met een heftruck alles zo naar boven kunt verplaatsen. Trap vanuit de bedrijfshal naar:

1e verdieping:
Opslagruimte en een kleine nette kantoorruimte aan de voorzijde. Bovenop de kantoorruimte is nog een kleine bergvliering.

Bijzonderheden:
- Bouwjaar 2002
- Begane grond 129m2
- 1e verdieping: 114m2
- Elektrische overheaddeur.
- vloerbelasting op de begane grond 1500 kg/m2 is.
- De overheaddeur is 3.40m breed en 4.25 hoog
- Huidige elektra aansluiting is: 3 x 35 ampere.
- Oudere C.V. combiketel voor verwarming en warmwater (is goed onderhouden en reeds voorzien van nieuw expansievat).
- Voorzien van alarmsysteem.
- Geen VVE maar geheel eigendom en dus geen gedoe en alles in eigen hand.
- wordt verkocht vrij van BTW (u hoeft dus geen BTW te betalen).

Datum van oplevering:
In overleg, maar kan spoedig.

Dit pand wordt verkocht met een as-is where is clausule.

Zekerheidsstelling: Bij ondertekening van de koopovereenkomst zal koper ter meerdere zekerheid voor de nakoming van zijn verplichtingen een waarborgsom ter grootte van 10 % van de koopsom voldoen op rekening van de notaris.

Notaris: Nader door koper te bepalen.

Alle door ons verstrekte informatie is geheel vrijblijvend. Ondanks de zorg die wij aan de informatie besteed hebben, aanvaarden wij geen aansprakelijkheid voor schade als gevolg van onvolledigheid, actualiteit of onjuistheid. Bovenstaande informatie mag niet worden beschouwd als een aanbieding of offerte.

Kenmerken

Overdracht

Prijs
€ 525.000 k.k.
Status
Beschikbaar

Bouw

Hoofdbestemming
Bedrijfsruimte
Nevenbestemming(en)
Bedrijfshal

Oppervlakten

Totaaloppervlakte
243m²
Units vanaf
243m²
Vrije hoogte
325cm

Indeling

Voorzieningen
Overheaddeuren, Betonvloer, Heater, Toilet, Pantry

Locatie

[ { "address": "Laan van Ambacht 14", "zipCode": "2631 RJ", "city": "Nootdorp", "lat": 52.0479879, "lng": 4.4074961, "heading": 0, "pitch": 0 } ]

Plattegronden

Laan van Ambacht 14, Nootdorp plattegrond-0
Laan van Ambacht 14, Nootdorp plattegrond-1
  

Maak een afspraak voor een bezichtiging

vul het onderstaande formulier in en we nemen zo snel mogelijk contact met u op.

Uw bericht is naar ons verzonden. Wij nemen zo snel mogelijk contact met u op.

Sorry, we kunnen helaas niet met zekerheid vaststellen of je een mens of een geautomatiseerde bot/spammer bent. Hierdoor kunnen we het formulier dat je hebt ingevuld niet verzenden. Probeer het opnieuw of neem direct contact op met de makelaar via e-mail.

Er is iets mis gegaan met het versturen van het formulier.
Controleer of u alle velden (goed) heeft ingevoerd en probeer het nog een keer.

Wilt u een bezichtiging plannen?

recaptcha
reCAPTCHA
PrivacyTerms

Liever telefonisch contact?

Wij zijn bereikbaar op werkdagen tussen 8:30 en 17:00 op
015 - 213 51 39.