Buenos Airesstraat 8

2622 AX, Delft ( gelegen in de wijk Tanthof west )


Omschrijving

In Tanthof west bieden wij te koop aan een ruime 5 kamer eengezinswoning met voor- en achtertuin. Deze eindwoning is rustig gelegen aan een plantsoen in een kindvriendelijke straat met nagenoeg alleen bestemmingsverkeer. Het Abtswoudsepark en recreatiegebied Midden-Delfland bevinden zich op steenworp afstand. Er is een goede verbinding te opzichte van het openbaar vervoer en de diverse uitvalswegen. De binnenstad van Delft is op 15 minuten fietsafstand.

De indeling is als volgt:

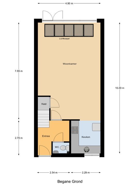
Begane grond:
Voortuin en entree van de woning met hal, trapopgang naar de 1e verdieping, meterkast en toilet. Aan de voorzijde bevindt zich de open keuken en de woonkamer is heerlijk licht en uitgebouwd. Vanuit de woonkamer is de achtertuin bereikbaar, gelegen op het noord westen en voorzien van een berging en achterom. De woonkamer en keuken zijn voorzien van vloerverwarming.

1e verdieping:
Overloop met trapopgang naar de 2e verdieping en de 1e slaapkamer aan de voorzijde gelegen. Naast deze slaapkamer ligt de badkamer welke is voorzien van een douche, toilet en wastafel. Aan de achterzijde bevindt zich de royale 2e slaapkamer, dit waren er in de oorsprong 2 en is gemakkelijk weer terug te brengen.

2e verdieping:
Ruime overloop met kastruimte en opstelplaats voor de CV ketel (2005) en de wasmachineaansluiting. De vlizotrap biedt toegang tot de praktische vliering. Aan de voorzijde ligt de slaapkamer met dakkapel en de laatste slaapkamer bevindt zich aan de achterzijde.

Bijzonderheden:
Eigen grond.
Bouwjaar 1982.
Gebruiksoppervlakte wonen 119 m2.
Bruto inhoud 424 m3.
Energielabel C.
Niet bewonersclausule van toepassing.

Kenmerken

Overdracht

Vraagprijs
€ 495.000 k.k.
Status
Verkocht onder voorbehoud
Oplevering
Per direct

Oppervlakten en inhoud

Woonoppervlakte
119m²
Perceeloppervlakte
123m²
Inhoud
424m³

Bouw

Soort woonhuis
Eengezinswoning, Eindwoning
Soort bouw
Bestaande bouw
Bouwjaar
1982
Onderhoud binnen
Goed
Onderhoud buiten
Goed

Indeling

Aantal kamers
5
Aantal slaapkamers
4
Aantal verdiepingen
4

Energie

Energielabel
C
Isolatie
Dakisolatie, Muurisolatie, Dubbel glas
Warm water
C.V.-ketel

Buitenruimte

Ligging
Aan rustige weg, In woonwijk
Tuin
Achtertuin, Voortuin
Achtertuin
Noordwest, 33m², 525×637cm
Schuur
Vrijstaand steen

Garage

Soort
Openbaar parkeren

Locatie

[{"address": "Buenos Airesstraat8","zipCode": "2622 AX","city": "Delft","lat": 51.9839177,"lng": 4.3514513,"heading": 0,"pitch": 0}]

Plattegronden

Buenos Airesstraat 8, Delft plattegrond-0
Buenos Airesstraat 8, Delft plattegrond-1
Buenos Airesstraat 8, Delft plattegrond-2
Buenos Airesstraat 8, Delft plattegrond-3
Buenos Airesstraat 8, Delft plattegrond-4
Buenos Airesstraat 8, Delft plattegrond-5
Buenos Airesstraat 8, Delft plattegrond-6
Buenos Airesstraat 8, Delft plattegrond-7
Buenos Airesstraat 8, Delft plattegrond-8
Buenos Airesstraat 8, Delft plattegrond-9
Buenos Airesstraat 8, Delft plattegrond-10
Buenos Airesstraat 8, Delft plattegrond-11
  

Maak een afspraak voor een bezichtiging

Vul het onderstaande formulier in en we nemen zo snel mogelijk contact met u op.

Uw bericht is naar ons verzonden. Wij nemen zo snel mogelijk contact met u op.

Sorry, we kunnen helaas niet met zekerheid vaststellen of je een mens of een geautomatiseerde bot/spammer bent. Hierdoor kunnen we het formulier dat je hebt ingevuld niet verzenden. Probeer het opnieuw of neem direct contact op met de makelaar via e-mail.

Er is iets mis gegaan met het versturen van het formulier.
Controleer of u alle velden (goed) heeft ingevoerd en probeer het nog een keer.

Wilt u een bezichtiging plannen?

recaptcha
reCAPTCHA
PrivacyTerms

Liever telefonisch contact?

Wij zijn bereikbaar op werkdagen tussen 8:30 en 17:00 op
015 - 213 51 39.

Vergelijkbare woningen