Crommelinlaan 39

2627 AD, Delft ( gelegen in de wijk Plein delftzicht )


Omschrijving

English text below!

Heeft u interesse in het huren van deze woning? Wij verzoeken u dan te reageren via Funda, Pararius of www.bjornd.nl. Vervolgens ontvangt u van ons een bevestigingsmail met een vragenlijst welke u dient in te vullen. Wanneer u geselecteerd bent voor de bezichtiging krijgt u van ons een uitnodiging. Indien u na 3 werkdagen niets van ons vernomen heeft bent u helaas niet geselecteerd voor de bezichtigingsronde. Na de bezichtiging dient u ons ook weer per e-mail te laten weten of u daadwerkelijk interesse heeft om de woning te huren. Wij zullen uw verzoek aan de verhuurder voorleggen.

In moderne, kindvriendelijke wijk "Delftzicht", op loopafstand van het oude centrum, vindt u deze lichte eengezinswoning met moderne vormgeving. Lessenaarsdak en een fraaie, gedeeltelijk schuin geplaatste voorgevel. Deze vierkamerwoning ligt in een rustige straat met voldoende parkeergelegenheid en heeft een 10 meter diepe zonnige tuin met schuur en achterom. Deze woning ligt heel centraal met diverse winkels (waaronder winkelcentrum De Hoven), scholen, openbaar vervoer (o.a. NS-station Delft-Zuid) en uitvalswegen in de buurt. De gezellige binnenstad van Delft en de TU-wijk liggen op loopafstand. Huur is € 2.150,- per maand exclusief g/w/e/TV/internet. Beschikbaar per 1 november 2025.

Indeling:
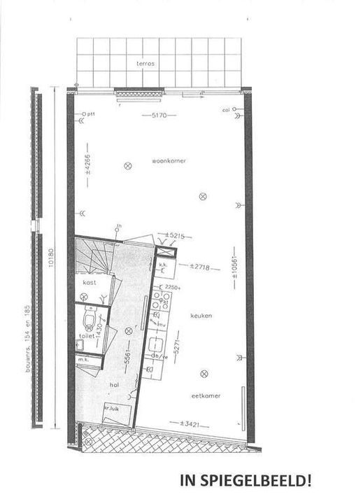
Begane grond:
Entree/hal met garderobe en meterkast, toilet met fonteintje, trapkast. Woonkamer circa 25 m2 voorzien van laminaatvloer en schuifpui naar zeer zonnig gelegen achtertuin met een grote stenen berging (elektriciteit aanwezig) en een achterom. De achtertuin is gelegen op het zuiden. Aan de voorzijde van de woning bevindt zich de een open keuken, welke is voorzien van gaskookplaat, afzuigkap, vaatwasser, koelkast/vriezer en combi oven/magnetron.

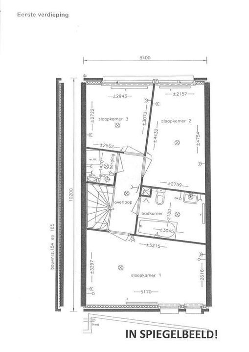
1e verdieping:
Overloop met grote bergkast met opstelplaats CV-combiketel, mechanische ventilatie en wasmachineaansluiting. Slaapkamer aan de achterzijde 3.6x5.17 met hoog plafond dankzij het lessenaars dak, nette badkamer met ligbad, separate douche, wastafel en toilet. Twee slaapkamers aan de voorzijde respectievelijk 2.5x3.15 en 2.7x3.7.

Voorwaarden:
- Te huur voor een gezinshuishouden van maximaal 4 personen, stel, geen studenten, PHD-stel is mogelijk, geen delers
- 1 maand waarborgsom betaalbaar voor de aanvang van het huurcontract
- De huur moet voor de 1e van de betreffende maand op de rekening staan van de verhuurder
- Er worden geen uitlatingen gedaan over het toewijzingsbeleid
- Huurakte onbepaalde tijd met een vaste huurperiode van 12 maanden voor huurder
- Gehele huurperiode kijkrecht voor de verhuurder bij beëindiging van het huurcontract
- Huisdieren in overleg
- ROZ huurcontract (www.roz.nl)
- Er mag niet gerookt worden en er mogen geen veranderingen aan het gehuurde plaatsvinden zonder schriftelijke toestemming van verhuurder.
- Als huurder dient u aantoonbaar voldoende financieel stabiel te zijn gedurende de gehele lengte van de overeen te komen huurovereenkomst.

Dit is een aanbod waar geen rechten aan kunnen worden ontleend, daar wijzigingen mogelijk zijn

Heeft u interesse in het huren van deze woning? Wij verzoeken u dan te reageren via Funda, Pararius of www.bjornd.nl. Vervolgens ontvangt u van ons een bevestigingsmail met een vragenlijst welke u dient in te vullen. Wanneer u geselecteerd bent voor de bezichtiging krijgt u van ons een uitnodiging. Indien u na 3 werkdagen niets van ons vernomen heeft bent u helaas niet geselecteerd voor de bezichtigingsronde. Na de bezichtiging dient u ons ook weer per e-mail te laten weten of u daadwerkelijk interesse heeft om de woning te huren. Wij zullen uw verzoek aan de verhuurder voorleggen.

Indien de verhuurder akkoord gaat zullen wij een huurcontract opstellen conform model Raad van Onroerende Zaken. Wij zullen deze per email aan u toesturen ter goedkeuring, vervolgens zullen wij een afspraak voor ondertekening inplannen alsmede een afspraak voor de opleveringsinspectie van de door u gehuurde woning (u ontvangt dan van ons de sleutel).

Are you interested in renting this property? We ask you to give a reaction by Funda, Pararius or www.bjornd.nl. You will receive a confirmation email from us with a form that you must complete. If you are selected for the viewing, you will receive an invitation from us. After the viewing, you must also let us know by e-mail whether you are actually interested in renting the house. We will submit your request to the landlord. If you did not hear anything from us after 3 working days, unfortunately, you have not been selected for the viewing round.

In a modern, child-friendly neighborhood "Delftzicht", within walking distance of the old center, you will find this bright single-family house with a modern design. This four-room house is located in a quiet street with ample parking and has a 10-metre-deep sunny garden with shed and back entrance. This house is very centrally located with various shops (including shopping center De Hoven), schools, public transport (including NS station Delft-Zuid) and roads nearby. The cozy city center of Delft and the TU district are within walking distance. Rent is € 2.150,- per month excluding g/w/e/TV/internet. Available per November 1st. 2025.

Layout:
Ground floor:
Entrance/hall with wardrobe and meter cupboard, toilet with sink, cupboard under the stairs. Living room approximately 25 m2 with laminate flooring and sliding doors to a very sunny backyard with a large stone shed (electricity available) and a back entrance. The backyard is located on the south. At the front of the house is an open kitchen, which is equipped with a gas hob, extractor hood, dishwasher, fridge / freezer and a combi oven / microwave.

1st floor:
Landing with large storage cupboard with central heating combi boiler, mechanical ventilation and washing machine connection. Bedroom at the rear 3.6x5.17 with high ceiling thanks to the pent roof, neat bathroom with bath, separate shower, sink and toilet. Two bedrooms at the front, respectively 2.5x3.15 and 2.7x3.7.

Rental conditions:
- Suitable for a family household of maximum 4 persons, no students, couple, PHD/couple is possible
- 1 month deposit
- Rent needs to be paid in advance
- There will be no explanations regarding the selecting process
- entire rental period viewing rights at termination off the contract
- Indefinite rental contract with an initial period of 12 months for tenant
- Pets in consultation with the owner
- ROZ-rental contract (www.roz.nl)
- No smoking and no changes can be made to the property (painting, drilling etc) without the written consent from the owner.
- As a tenant, you must be able to show that you are sufficiently, financially stable throughout the entire length of the rental agreement.

From this offer from which no rights can be obtained, since changes are possible

Are you interested in renting this property? We ask you to give a reaction by Funda, Pararius or www.bjornd.nl. You will receive a confirmation email from us with a form that you must complete. If you are selected for the viewing, you will receive an invitation from us. After the viewing, you must also let us know by e-mail whether you are actually interested in renting the house. We will submit your request to the landlord. If you did not hear anything from us after 3 working days, unfortunately, you have not been selected for the viewing round.

If the owner confirms the deal we will draft a rental contract (Model Council of Immovable goods: www.roz.nl) We present you a concept via email and schedule an appointment for signing the contract and also an appointment for inspection of your new home. We will inspect the place together with you and if all is well you receive the key.

Kenmerken

Overdracht

Huurprijs
€ 2.150 p.m. ex.
Inrichting
Gestoffeerd
Status
Beschikbaar
Oplevering
01-11-2025

Oppervlakten en inhoud

Woonoppervlakte
110m²
Perceeloppervlakte
109m²
Inhoud
310m³

Bouw

Soort woonhuis
Eengezinswoning, Tussenwoning
Soort bouw
Bestaande bouw
Bouwjaar
1997
Onderhoud binnen
Goed
Onderhoud buiten
Goed

Indeling

Aantal kamers
4
Aantal slaapkamers
3
Aantal verdiepingen
2

Energie

Energielabel
B

Buitenruimte

Ligging
In woonwijk
Tuin
Achtertuin, Voortuin
Achtertuin
Zuid, 45m², 500×900cm
Schuur
Vrijstaand steen

Garage

Soort
Openbaar parkeren

Locatie

[{"address": "Crommelinlaan39","zipCode": "2627 AD","city": "Delft","lat": 52.003407,"lng": 4.3593973,"heading": 0,"pitch": 0}]

Plattegronden

Crommelinlaan 39, Delft plattegrond-0
Crommelinlaan 39, Delft plattegrond-1
  

Maak een afspraak voor een bezichtiging

Vul het onderstaande formulier in en we nemen zo snel mogelijk contact met u op.

Uw bericht is naar ons verzonden. Wij nemen zo snel mogelijk contact met u op.

Sorry, we kunnen helaas niet met zekerheid vaststellen of je een mens of een geautomatiseerde bot/spammer bent. Hierdoor kunnen we het formulier dat je hebt ingevuld niet verzenden. Probeer het opnieuw of neem direct contact op met de makelaar via e-mail.

Er is iets mis gegaan met het versturen van het formulier.
Controleer of u alle velden (goed) heeft ingevoerd en probeer het nog een keer.

Wilt u een bezichtiging plannen?

recaptcha
reCAPTCHA
PrivacyTerms

Liever telefonisch contact?

Wij zijn bereikbaar op werkdagen tussen 8:30 en 17:00 op
015 - 213 51 39.

Vergelijkbare woningen