Hippolytusbuurt 11

2611 HM, Delft ( gelegen in de wijk Binnenstad )


Omschrijving

Te koop dit fraaie grachtenpand zijnde een winkel-woonhuis, gebouwd in 1894 opdrachtgever van: Uurwerkmaker: W.W.C. van der Schoot. Dit pand bestaat uit een winkelruimte op de begane grond welke leeg wordt opgeleverd en een separate (eigen entree) dubbele bovenwoning nu ingedeeld in 3 kleine studio's/appartementen (ook het bovenhuis wordt leeg opgeleverd).

Altijd al een winkel/galerie-woonhuis gewenst op een fraaie locatie, dan is dit uw kans !

Totaal ca. 192m2 woonoppervlakte en voorzien van een fraaie pui en natuurlijk gelegen op een prachtige locatie aan één van de mooiste grachten in de Delftse binnenstad.

Begane grond: ca. 78m2 winkel met industriële uitstraling op fraaie locatie in de Delfste binnenstad aan de gracht. Een hoge en brede pui laat veel licht naar binnen en ook aan de achterzijde van het pand is er daglicht.

Gelegen in het hart van de historische binnenstad van Delft aan een autovrije straat en om de hoek ligt de Choorstraat en in het verlengde de Voorstraat.

Het pand is nu in gebruik door de chocoladebar, naast gelegen panden zijn in gebruik door Bakkerij van Maanen, Heinen Delft Blauw, Steendam Herenmode, Het Postkantoor en nog vele andere speciality stores.

Dubbel bovenwoning totaal ca. 114m2: ingedeeld als drie studio's met eigen keuken en badkamer.

Begane grond: Eigen entree, meterkast
1e verdieping: hal, studio aan de voorzijde met eigen badkamer en kitchenette. Studio aan de achterzijde met eigen toilet, douche en ruime moderne keuken.
2e verdieping: studio met eigen badkamer en keuken.

Bijzonderheden:
- Totaal ca. 192m2. 84m2 eigen grond aan de gracht.
- Pand wordt leeg geleverd.
- Pand werd tot voor kort verhuurd voor ca. 68.000,= euro per jaar.
- Pand wat in de basis goed is onderhouden maar wel wat werk te doen is.
- Pand is aangewezen als gemeentelijk monument
- Er is geen energielabel, dat hoeft ook niet door de monumentale status
- Separaat te bewonen/gebruiken, te verhuren of voor eigen gebruik
- Verwarming via 2 c.v. ketels:
Hippolytusbuurt 11: Remeha Calenta 25 S, uit januari 2013.
Hippolytusbuurt 13: Remeha 40L CW6, uit oktober 2012.

Locatie: Het onderhavige object is gelegen in het winkelgebied 'De Klis'. Dit winkelgebied kenmerkt zich voornamelijk door de grote aanwezigheid van dienstverlenende bedrijven, denk hierbij aan uitzend- en toeristenbureaus. Tevens zijn er ook diverse lokale detaillisten gevestigd alsmede een vestiging van Albert Heijn, trekpleister, Boekhandels Paagman, Bakkerij Diamanten ring, Leonidas en nog vele sterke ondernemingen.

Het pand is aangewezen als gemeentelijk monument

Winkelwoonhuis met een voorgevel met een 19de eeuws voorkomen en een rijke winkelpui uit 1894 in eclectische vormen. Pand in opzet mogelijk ouder. Het pand is van algemeen belang voor de gemeente Delft vanwege de cultuurhistorische en architectuurhistorische waarde. Het is van belang als goed en gaaf voorbeeld van een winkelpand dat in de 19de eeuw zijn uiterlijk voorkomen heeft gekregen. Het is van belang van- wege de fraaie winkelpui die opmerkelijk gaaf bewaard is gebleven en een goed voorbeeld van een rijk gedetailleerde pui in eclectisch-classicistische vormen.

Gebouwd in 1894 opdrachtgever van: Uurwerkmaker: W.W.C. van der Schoot.

Kenmerken

Overdracht

Vraagprijs
€ 695.000 k.k.
Status
Verkocht onder voorbehoud
Oplevering
In overleg

Oppervlakten en inhoud

Woonoppervlakte
192m²
Perceeloppervlakte
84m²
Inhoud
605m³

Bouw

Soort woonhuis
Grachtenpand, Tussenwoning
Soort bouw
Bestaande bouw
Bouwjaar
1894
Onderhoud binnen
Redelijk
Onderhoud buiten
Redelijk

Indeling

Aantal kamers
5
Aantal slaapkamers
3
Aantal verdiepingen
3
Voorzieningen
Dakraam, TV-Kabel

Energie

Warm water
C.V.-ketel

Buitenruimte

Ligging
Aan het water, In centrum, Aan vaarroute

Locatie

[{"address": "Hippolytusbuurt11","zipCode": "2611 HM","city": "Delft","lat": 52.0126441,"lng": 4.3568904,"heading": 0,"pitch": 0}]

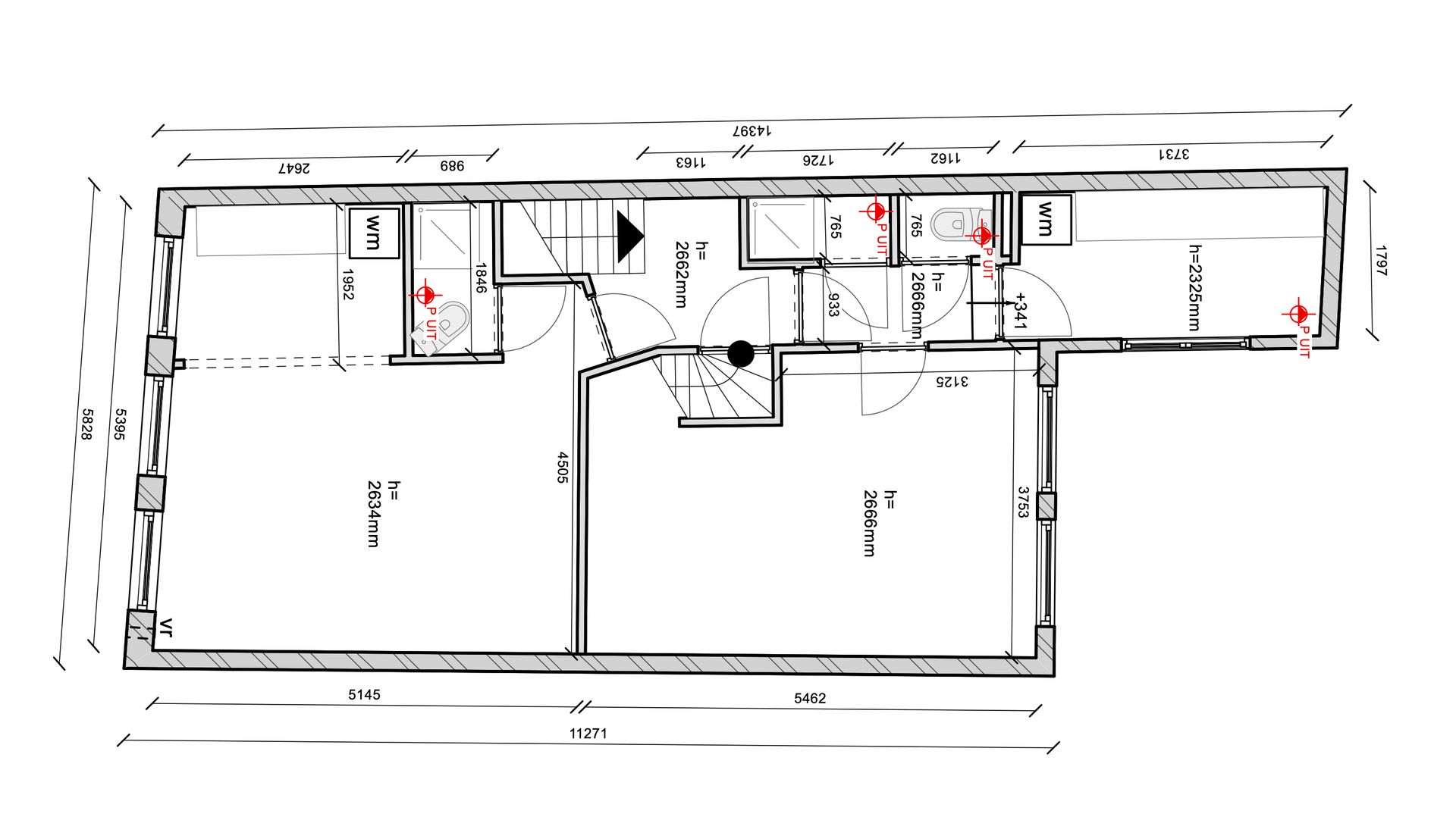
Plattegronden

Hippolytusbuurt 11, Delft plattegrond-0
Hippolytusbuurt 11, Delft plattegrond-1
Hippolytusbuurt 11, Delft plattegrond-2
  

Maak een afspraak voor een bezichtiging

Vul het onderstaande formulier in en we nemen zo snel mogelijk contact met u op.

Uw bericht is naar ons verzonden. Wij nemen zo snel mogelijk contact met u op.

Sorry, we kunnen helaas niet met zekerheid vaststellen of je een mens of een geautomatiseerde bot/spammer bent. Hierdoor kunnen we het formulier dat je hebt ingevuld niet verzenden. Probeer het opnieuw of neem direct contact op met de makelaar via e-mail.

Er is iets mis gegaan met het versturen van het formulier.
Controleer of u alle velden (goed) heeft ingevoerd en probeer het nog een keer.

Wilt u een bezichtiging plannen?

recaptcha
reCAPTCHA
PrivacyTerms

Liever telefonisch contact?

Wij zijn bereikbaar op werkdagen tussen 8:30 en 17:00 op
015 - 213 51 39.

Vergelijkbare woningen