Machteld van Meterenlaan 79

2628 LP, Delft ( gelegen in de wijk Zeeheldenkwartier / Tu Wijk )


Omschrijving

Op een rustige locatie tegen de binnenstad aan bieden wij te koop aan een netjes onderhouden 3 kamer appartement met balkon en loggia. Dit appartement beschikt over een eigen parkeerplaats en een berging in de onderbouw. Het is gelegen in een kleinschalig complex, 'Curtis Ricardis', gebouwd in 2002, op een fraaie locatie nabij de Schie en op loopafstand van het centrum van Delft, TU en het Centraal Station. Daarnaast is er een goede verbinding ten opzichte van de diverse uitvalswegen.

De indeling is als volgt:

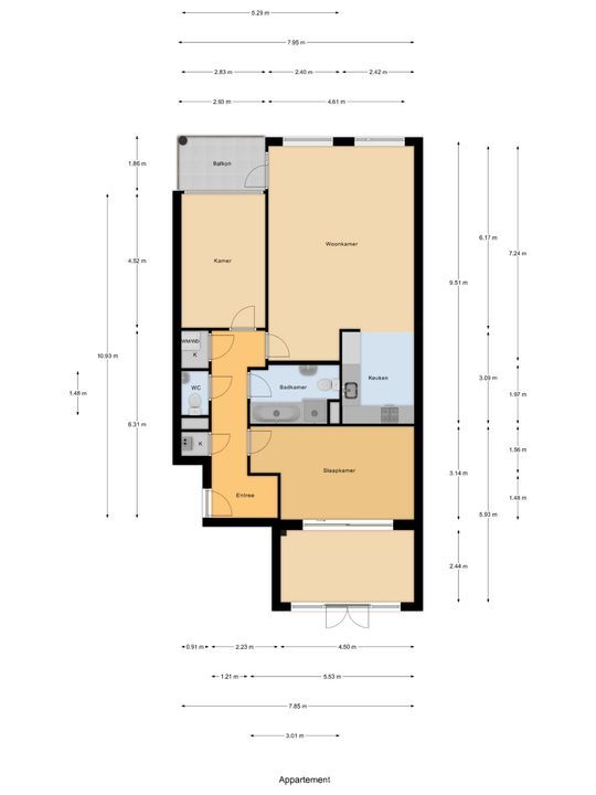
Begane grond: centrale ruime entree met videofoon installatie, brievenbussen, bellentableau, trappenhuis en lift.

1e verdieping:
Entree van het appartement. Hal met toilet , CV-kast en berging met opstelplaats wasmachine. Ruime woonkamer welke toegang biedt tot het balkon. Aansluitend aan de woonkamer bevindt zich de half open keuken welke is voorzien van een 4 pits gaskookplaat met afzuigkap, koel/vries combinatie, vaatwasser en oven. Ruime slaapkamer aan de voorzijde met schuifpui naar loggia, welke op diverse manieren te gebruiken is. De badkamer beschikt over een ligbad, afzonderlijke douche, wastafel en een 2e toilet. Naast de woonkamer ligt de 2e slaapkamer.

Bijzonderheden:
Bouwjaar 2002.
Gebruiksoppervlakte wonen 104 m2.
Bruto inhoud 326 m3.
Volledig geïsoleerd.
CV ketel bouwjaar 2020.
Energielabel A.
Actieve VVE, bijdrage € 308,= per maand.
Niet bewonersclausule van toepassing

Kenmerken

Overdracht

Vraagprijs
€ 575.000 k.k.
Status
Beschikbaar
Oplevering
In overleg

Oppervlakten en inhoud

Woonoppervlakte
104m²
Inhoud
326m³

Bouw

Soort appartement
Portiekflat, Appartement
Woonlaag
1
Soort bouw
Bestaande bouw
Bouwjaar
2002
Onderhoud binnen
Goed
Onderhoud buiten
Goed

Indeling

Aantal kamers
3
Aantal slaapkamers
2
Aantal verdiepingen
1
Voorzieningen
Mechanische ventilatie, Lift

Energie

Energielabel
A
Isolatie
Volledig geisoleerd
Warm water
C.V.-ketel

Buitenruimte

Ligging
Aan rustige weg, In woonwijk
Balkon
Ja
Schuur
Box

Locatie

[{"address": "Machteld van Meterenlaan79","zipCode": "2628 LP","city": "Delft","lat": 52.0020193,"lng": 4.3642253,"heading": 0,"pitch": 0}]

Plattegronden

Machteld van Meterenlaan 79, Delft plattegrond-0
Machteld van Meterenlaan 79, Delft plattegrond-1
Machteld van Meterenlaan 79, Delft plattegrond-2
Machteld van Meterenlaan 79, Delft plattegrond-3
  

Maak een afspraak voor een bezichtiging

Vul het onderstaande formulier in en we nemen zo snel mogelijk contact met u op.

Uw bericht is naar ons verzonden. Wij nemen zo snel mogelijk contact met u op.

Sorry, we kunnen helaas niet met zekerheid vaststellen of je een mens of een geautomatiseerde bot/spammer bent. Hierdoor kunnen we het formulier dat je hebt ingevuld niet verzenden. Probeer het opnieuw of neem direct contact op met de makelaar via e-mail.

Er is iets mis gegaan met het versturen van het formulier.
Controleer of u alle velden (goed) heeft ingevoerd en probeer het nog een keer.

Wilt u een bezichtiging plannen?

recaptcha
reCAPTCHA
PrivacyTerms

Liever telefonisch contact?

Wij zijn bereikbaar op werkdagen tussen 8:30 en 17:00 op
015 - 213 51 39.

Vergelijkbare woningen