Vaandelstraat 44

2611 DB, Delft ( gelegen in de wijk Binnenstad )


Omschrijving

Op een fantastische plek midden in de binnenstad en tegenover stadspark Doelentuin, bieden wij te koop aan een netjes onderhouden 3 kamer penthouse met mogelijkheid van uitbouw met een hele etage, groot dakterras, parkeerplaats in de parkeergarage.

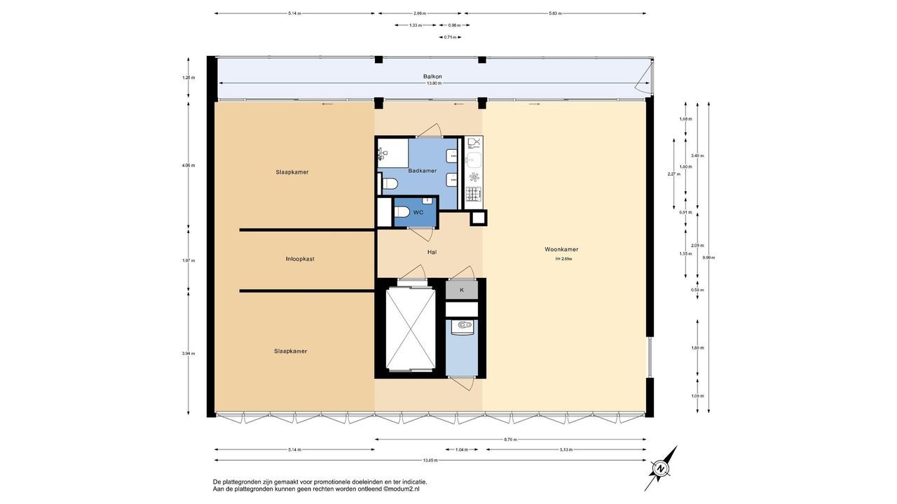
Eigen lift komt rechtstreeks uit in het appartement welke als 1 open ruimte is ingedeeld door centrale blokken waarin de badkamer en andere voorzieningen zijn aangebracht.

Aan de voorzijde is de gehele gevel open te zetten door openslaande deuren. Aan de achterzijde zijn 3 schuifpuien zodat ook deze zijde vrijwel geheel open kan.

Er is een ruime berging onder het complex en een, vanuit het appartement bereikbare parkeerplaats in de parkeergarage.

De locatie is zeer rustig maar absoluut centraal met diverse leuke winkels, gezellige terrassen, restaurants en cafeetjes om de hoek. Een plek voor genieters die houden van buiten de deur eten, theater en cultuur en dit alles in de historische binnenstad !

Souterrain:
Kelderberging deur naar parkeerplaats in parkeergarage, u rijdt dus de parkeergarage in onder uw woning en komt dan via de berging thuis of….

Begane grond:
Entree met deur waarachter zich direct de liftdeur bevindt, lift naar

3e verdieping:
Hal, toilet met fonteintje, ruime woonkamer met schuifpui aan de achterzijde en openslaande deuren aan de voorzijde met vrij uitzicht over het stadspark de Doelentuin. De woonkamer is net als de gehele woning voorzien van een hardstenenvloer met vloerverwarming. De compacte Bulthaup keuken is voorzien van 4 pits inductie kookplaat, afzuigkap, vaatwasser, oven, magnetron en koelkast. Aan de andere zijde van de woning is tevens een ruimte met een schuifpui aan de achterzijde en openslaande deuren aan de voorzijde. Via de schuifpuien komt u op het balkon over de volle breedte van het appartement. Hier kunt genieten van de avondzon. Via een stalen trap kunt u nog 1 etage hoger naar uw riante dakterras met een pracht zicht op de binnenstad. Het is ook mogelijk hier nog een extra etage realiseren.

Bijzonderheden:
Eigen grond.
Gebruiksoppervlakte wonen 126 m2.
Bruto inhoud 414 m3.
Buitengewoon penthouse op een top locatie.
Energielabel B.

Kenmerken

Overdracht

Vraagprijs
€ 1.000.000 k.k.
Status
Beschikbaar
Oplevering
In overleg

Oppervlakten en inhoud

Woonoppervlakte
126m²
Inhoud
414m³

Bouw

Soort appartement
Penthouse, Appartement
Woonlaag
4
Soort bouw
Bestaande bouw
Bouwjaar
2003
Onderhoud binnen
Goed
Onderhoud buiten
Goed

Indeling

Aantal kamers
3
Aantal slaapkamers
2
Aantal verdiepingen
1

Energie

Energielabel
B

Buitenruimte

Balkon
Ja
Tuin
Zonneterras
Zonneterras
Zuidwest, 126m², 1368×1020cm
Schuur
Box

Locatie

[{"address": "Vaandelstraat44","zipCode": "2611 DB","city": "Delft","lat": 52.015171,"lng": 4.360125,"heading": 0,"pitch": 0}]

Plattegronden

Vaandelstraat 44, Delft plattegrond-0
Vaandelstraat 44, Delft plattegrond-1
Vaandelstraat 44, Delft plattegrond-2
Vaandelstraat 44, Delft plattegrond-3
  

Maak een afspraak voor een bezichtiging

Vul het onderstaande formulier in en we nemen zo snel mogelijk contact met u op.

Uw bericht is naar ons verzonden. Wij nemen zo snel mogelijk contact met u op.

Sorry, we kunnen helaas niet met zekerheid vaststellen of je een mens of een geautomatiseerde bot/spammer bent. Hierdoor kunnen we het formulier dat je hebt ingevuld niet verzenden. Probeer het opnieuw of neem direct contact op met de makelaar via e-mail.

Er is iets mis gegaan met het versturen van het formulier.
Controleer of u alle velden (goed) heeft ingevoerd en probeer het nog een keer.

Wilt u een bezichtiging plannen?

recaptcha
reCAPTCHA
PrivacyTerms

Liever telefonisch contact?

Wij zijn bereikbaar op werkdagen tussen 8:30 en 17:00 op
015 - 213 51 39.

Vergelijkbare woningen