Aart van der Leeuwlaan 84

2624 LE, Delft ( gelegen in de wijk Voorhof )


Omschrijving

In de wijk Voorhof bieden wij te koop aan een 4 kamer appartement op de 6e verdieping gelegen. Het appartement heeft een ruime en lichte woonkamer met 3 slaapkamers, een zonnig balkon op het zuid westen gelegen en een eigen berging in de onderbouw. Het complex is gelegen in een groene woonomgeving nabij winkelcentrum 'De Hoven Passage'' en Albert Heijn XL. De bruisende binnenstad bevindt zich op 10 minuten fietsafstand en er is een prima situering ten opzichte van het openbaar vervoer en de diverse uitvalswegen. Centrale ligging nabij winkelcentrum De Hoven, openbaar vervoer en uitvalswegen A4, A13 en N470. Het recreatiegebied Midden-Delfland en de golfbaan liggen op slechts 10 minuten fietsafstand.

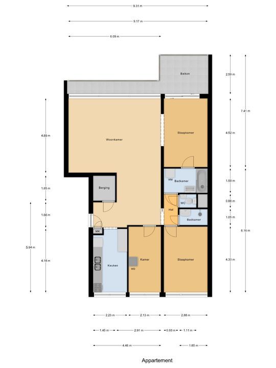
De indeling is als volgt:

Begane grond:
Afgesloten entree, liften, trappenhuis en toegang tot bergingen.

6e verdieping:
Entree van het appartement, meterkast, interne berging, open hal naar de ruime woonkamer, slaapkamer met toegang tot het terras via een schuifdeur. Vanuit de kamer toegang tot de badkamers. De 1e badkamer is voorzien van een ligbad, wastafel en de wasmachineaansluiting. De 2e badkamer beschikt over een douche en wastafel. Toilet met fontein. De keuken is voorzien van losse apparatuur. Aan de achterzijde bevinden zich de andere 2 slaapkamers.

Bijzonderheden:
Bouwjaar 1972.
Gebruiksoppervlakte wonen 104 m2.
Bruto inhoud 334 m3.
Actieve VvE, bijdrage circa € 334,- per maand (inclusief € 56,03 vve Energiebespaarlening),
exclusief circa € 120,- voorschot stookkosten
Energielabel E
Ruime eigen berging in de onderbouw
Gemeenschappelijke binnentuin aan de achterzijde
Voldoende parkeergelegenheid voor de deur
Centrale ligging nabij winkelcentrum De Hoven, openbaar vervoer en uitvalswegen A4, A13 en N470
Het historische centrum van Delft en recreatiegebied Midden-Delfland en de golfbaan liggen op slechts 10 minuten fietsafstand.

Interesse in dit huis? Schakel dan direct uw eigen NVM-aankoopmakelaar in. Uw lokale NVM-aankoopmakelaar komt op voor uw belangen en bespaart u tijd, geld en zorgen. Adressen van NVM Aankoopmakelaars vindt u op Funda.nl

Kenmerken

Overdracht

Vraagprijs
€ 370.000 k.k.
Status
Beschikbaar
Oplevering
In overleg

Oppervlakten en inhoud

Woonoppervlakte
104m²
Inhoud
334m³

Bouw

Soort appartement
Portiekflat, Appartement
Woonlaag
6
Soort bouw
Bestaande bouw
Bouwjaar
1972
Onderhoud binnen
Goed
Onderhoud buiten
Goed

Indeling

Aantal kamers
4
Aantal slaapkamers
3
Aantal verdiepingen
1

Energie

Energielabel
E
Warm water
Centrale voorziening

Buitenruimte

Schuur
Box

Garage

Soort
Openbaar parkeren

Locatie

[{"address": "Aart van der Leeuwlaan84","zipCode": "2624 LE","city": "Delft","lat": 51.9939814,"lng": 4.3505487,"heading": 0,"pitch": 0}]

Plattegronden

Aart van der Leeuwlaan 84, Delft plattegrond-0
Aart van der Leeuwlaan 84, Delft plattegrond-1
Aart van der Leeuwlaan 84, Delft plattegrond-2
  

Maak een afspraak voor een bezichtiging

Vul het onderstaande formulier in en we nemen zo snel mogelijk contact met u op.

Uw bericht is naar ons verzonden. Wij nemen zo snel mogelijk contact met u op.

Sorry, we kunnen helaas niet met zekerheid vaststellen of je een mens of een geautomatiseerde bot/spammer bent. Hierdoor kunnen we het formulier dat je hebt ingevuld niet verzenden. Probeer het opnieuw of neem direct contact op met de makelaar via e-mail.

Er is iets mis gegaan met het versturen van het formulier.
Controleer of u alle velden (goed) heeft ingevoerd en probeer het nog een keer.

Wilt u een bezichtiging plannen?

recaptcha
reCAPTCHA
PrivacyTerms

Liever telefonisch contact?

Wij zijn bereikbaar op werkdagen tussen 8:30 en 17:00 op
015 - 213 51 39.

Vergelijkbare woningen