Caspar Fagelstraat 7 A

2613 GT, Delft ( gelegen in de wijk Hof van Delft )


Omschrijving

In de gewilde wijk “Hof van Delft" gelegen 3 kamer parterrewoning met zonnige achtertuin. De woning is gelegen in een rustige wijk welke centraal is gelegen, heeft gezellige buurtwinkels en het mooie Wilhelminapark op loopafstand en een goede situering naar de uitvalswegen en het openbaar vervoer. Voorts ligt de historische binnenstad op 5 minuten fietsafstand.

De indeling is als volgt:

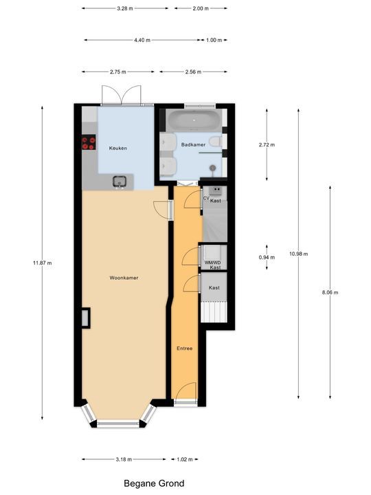
Begane grond:
Entree, ruime hal, praktische wasmachine-ruimte en kelder-/trapkast met opstelplaats CV-combi-ketel. Nette badkamer met toilet, dubbel wastafelmeubel, ligbad en aparte douche. Sfeervolle woonkamer met erker aan de voorzijde en nette keuken in de uitbouw aan de achterzijde. De keuken is opgesteld in een hoek en is voorzien van inbouwapparatuur, te weten: inductie kookplaat, afzuigkap, combi-magnetron, koelkast met vriesvak en vaatwasser. Via openslaande deuren is de achtertuin op het westen bereikbaar. Hier kunt u heerlijk van de zon genieten totdat deze ondergaat. Vanuit de gang, trap naar:

Eerste verdieping:
Overloop en slaapkamer, trap naar:

Tweede verdieping:
Overloop, bergkast en slaapkamer.

Bijzonderheden
Bouwjaar 1935.
Gebruiksoppervlakte wonen 81 m2.
Bruto inhoud 300 m3.
Energielabel D.
VVE is actief met een maandelijkse bijdrage van € 96,=.

Kenmerken

Overdracht

Vraagprijs
€ 395.000 k.k.
Status
Verkocht onder voorbehoud
Oplevering
In overleg

Oppervlakten en inhoud

Woonoppervlakte
81m²
Inhoud
300m³

Bouw

Soort appartement
Beneden + bovenwoning, Appartement
Woonlaag
1
Soort bouw
Bestaande bouw
Bouwjaar
1930
Onderhoud binnen
Goed
Onderhoud buiten
Goed

Indeling

Aantal kamers
3
Aantal slaapkamers
2
Aantal verdiepingen
1

Energie

Energielabel
D

Buitenruimte

Tuin
Achtertuin
Achtertuin
West, 45m², 560×800cm

Garage

Soort
Betaald parkeren, Parkeervergunning

Locatie

[{"address": "Caspar Fagelstraat7","zipCode": "2613 GT","city": "Delft","lat": 52.0081702,"lng": 4.3473907,"heading": 0,"pitch": 0}]

Plattegronden

Caspar Fagelstraat 7 A, Delft plattegrond-0
Caspar Fagelstraat 7 A, Delft plattegrond-1
Caspar Fagelstraat 7 A, Delft plattegrond-2
Caspar Fagelstraat 7 A, Delft plattegrond-3
Caspar Fagelstraat 7 A, Delft plattegrond-4
Caspar Fagelstraat 7 A, Delft plattegrond-5
Caspar Fagelstraat 7 A, Delft plattegrond-6
Caspar Fagelstraat 7 A, Delft plattegrond-7
  

Maak een afspraak voor een bezichtiging

Vul het onderstaande formulier in en we nemen zo snel mogelijk contact met u op.

Uw bericht is naar ons verzonden. Wij nemen zo snel mogelijk contact met u op.

Sorry, we kunnen helaas niet met zekerheid vaststellen of je een mens of een geautomatiseerde bot/spammer bent. Hierdoor kunnen we het formulier dat je hebt ingevuld niet verzenden. Probeer het opnieuw of neem direct contact op met de makelaar via e-mail.

Er is iets mis gegaan met het versturen van het formulier.
Controleer of u alle velden (goed) heeft ingevoerd en probeer het nog een keer.

Wilt u een bezichtiging plannen?

recaptcha
reCAPTCHA
PrivacyTerms

Liever telefonisch contact?

Wij zijn bereikbaar op werkdagen tussen 8:30 en 17:00 op
015 - 213 51 39.

Vergelijkbare woningen