Papsouwselaan 249

2624 AP, Delft ( gelegen in de wijk Voorhof )


Omschrijving

Op zeer centrale locatie, tegenover winkelcentrum De Hoven en nabij het historische centrum van Delft bieden wij te koop aan dit 3 kamer appartement (oorspronkelijk 4 kamer appartement) op de 2e verdieping gelegen, met balkon en eigen berging. Wonen aan de Papsouwselaan betekent een leuk ingedeeld appartement, een ruime woonkamer welke een gunstige lichtinval heeft en een zonnig balkon. Tel hier het volledige winkelaanbod van winkelcentrum 'De Hovenpassage' binnen handbereik, het openbaar vervoer voor de deur en het centrum letterlijk om de hoek bij op en het is zowel voor jong als oud een leuke plek om te wonen!

De indeling is als volgt:

Begane grond:
Entree van het complex, toegang tot eigen (fietsen)berging en zowel een trap als lift naar de woonverdiepingen.

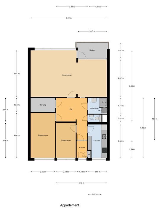
3e verdieping:
Entree van het appartement met vestibule, ruime hal met meterkast en toilet. Aan de voorzijde gelegen dichte keuken voorzien van inductiekookplaat, oven, koelkast, vriezer en vaatwasser. Tevens bevinden zich aan de voorzijde de hoofdslaapkamer met daarnaast de 2e slaapkamer. Voorts is er in de hal een zeer praktische berging met aan de overzijde de badkamer welke is voorzien van een douche, wastafel, wasmachineaansluiting en de opstelplaats voor de boiler. Aan de achterzijde gelegen heerlijke ruime en lichte woonkamer (oorspronkelijk waren dit 2 kamers) over de volle breedte van het appartement met een levendig uitzicht. Vanuit de woonkamer is het zonnige balkon op het westen te bereiken.

Bijzonderheden:
Bouwjaar 1967.
Gebruiksoppervlakte wonen 91 m2.
Bruto inhoud 287 m3.
Energielabel C.
Actieve VVE, maandelijkse bijdrage € 258,61 exclusief € 93,75 voorschot stookkosten.
Ouderdomsclausule van toepassing.

Kenmerken

Overdracht

Vraagprijs
€ 365.000 k.k.
Status
Verkocht onder voorbehoud
Oplevering
Per direct

Oppervlakten en inhoud

Woonoppervlakte
91m²
Inhoud
287m³

Bouw

Soort appartement
Galerijflat, Appartement
Woonlaag
3
Soort bouw
Bestaande bouw
Bouwjaar
1967
Onderhoud binnen
Goed
Onderhoud buiten
Goed

Indeling

Aantal kamers
3
Aantal slaapkamers
2
Aantal verdiepingen
1

Energie

Energielabel
C
Isolatie
Dubbel glas
Warm water
Elektrische boiler eigendom

Buitenruimte

Ligging
In woonwijk
Balkon
Ja
Schuur
Box

Garage

Soort
Betaald parkeren, Parkeervergunning

Locatie

[{"address": "Papsouwselaan249","zipCode": "2624 AP","city": "Delft","lat": 51.9981327,"lng": 4.3554913,"heading": 0,"pitch": 0}]

Plattegronden

Papsouwselaan 249, Delft plattegrond-0
Papsouwselaan 249, Delft plattegrond-1
Papsouwselaan 249, Delft plattegrond-2
Papsouwselaan 249, Delft plattegrond-3
  

Maak een afspraak voor een bezichtiging

Vul het onderstaande formulier in en we nemen zo snel mogelijk contact met u op.

Uw bericht is naar ons verzonden. Wij nemen zo snel mogelijk contact met u op.

Sorry, we kunnen helaas niet met zekerheid vaststellen of je een mens of een geautomatiseerde bot/spammer bent. Hierdoor kunnen we het formulier dat je hebt ingevuld niet verzenden. Probeer het opnieuw of neem direct contact op met de makelaar via e-mail.

Er is iets mis gegaan met het versturen van het formulier.
Controleer of u alle velden (goed) heeft ingevoerd en probeer het nog een keer.

Wilt u een bezichtiging plannen?

recaptcha
reCAPTCHA
PrivacyTerms

Liever telefonisch contact?

Wij zijn bereikbaar op werkdagen tussen 8:30 en 17:00 op
015 - 213 51 39.

Vergelijkbare woningen