Van Bossestraat 35

2613 CN, Delft ( gelegen in de wijk Hof van Delft )


Omschrijving

In de gewilde wijk Hof van Delft bieden wij te koop aan een leuke 2/3 kamer jaren dertig benedenwoning met een prima tuin op het zuid oostengelegen. Deze parterrewoning met diverse karakteristieke details ligt op een steenworp afstand van de bruisende en historische binnenstad. In de directe omgeving bevinden zich een aantal winkels, scholen en parken (Wilhelminapark en Agnetapark). Daarnaast is er een goede verbinding ten opzichte van het openbaar vervoer en de diverse uitvalswegen.

De indeling is als volgt:

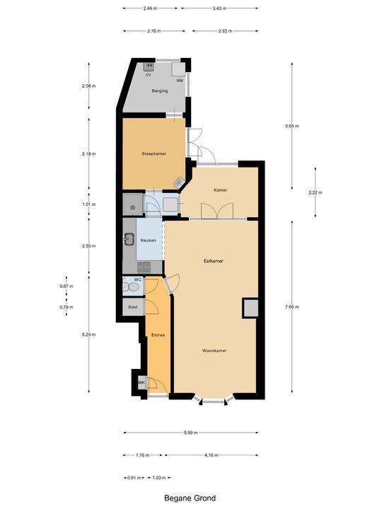
Begane grond:
Entree met hal voorzien van Terrazzo vloer, toilet en bergkast. Prettige en lichte woonkamer met erker aan de voorzijde. Aan de achterzijde van de woonkamer is, middels openslaande deuren de serre/kamer te bereiken. Via de woonkamer is er toegang tot de open keuken voorzien van enige inbouwapparatuur. Vanuit de keuken is er een open doucheruimte met doorloop naar de slaapkamer welke beschikt over een wastafel. De slaapkamer heeft openslaande deuren naar de tuin. Achter de slaapkamer is er een praktische berging met de opstelplaats voor de CV ketel en de wasmachineaansluiting. Heerlijke zonnige achtertuin op het zuidoosten gelegen. Kortom; een ideale starterswoning, gelegen op een uiterst fijne locatie!

Bijzonderheden:
Eigen grond.
Bouwjaar 1930.
Gebruiksoppervlakte wonen 69 m2.
Bruto inhoud 269 m3.
Energielabel E.
Slapende VVE.
Ouderdomsclausule van toepassing.

Kenmerken

Overdracht

Vraagprijs
€ 355.000 k.k.
Status
Verkocht onder voorbehoud
Oplevering
In overleg

Oppervlakten en inhoud

Woonoppervlakte
69m²
Inhoud
261m³

Bouw

Soort appartement
Benedenwoning, Appartement
Woonlaag
1
Soort bouw
Bestaande bouw
Bouwjaar
1930
Onderhoud binnen
Goed
Onderhoud buiten
Goed

Indeling

Aantal kamers
3
Aantal slaapkamers
1
Aantal verdiepingen
1

Energie

Energielabel
E
Isolatie
Gedeeltelijk dubbel glas
Warm water
C.V.-ketel

Buitenruimte

Ligging
In woonwijk
Tuin
Achtertuin
Achtertuin
Zuidoost, 29m², 293×996cm

Garage

Soort
Betaald parkeren, Parkeervergunning

Locatie

[{"address": "Van Bossestraat35","zipCode": "2613 CN","city": "Delft","lat": 52.0108669,"lng": 4.3481149,"heading": 0,"pitch": 0}]

Plattegronden

Van Bossestraat 35, Delft plattegrond-0
Van Bossestraat 35, Delft plattegrond-1
Van Bossestraat 35, Delft plattegrond-2
Van Bossestraat 35, Delft plattegrond-3
  

Maak een afspraak voor een bezichtiging

Vul het onderstaande formulier in en we nemen zo snel mogelijk contact met u op.

Uw bericht is naar ons verzonden. Wij nemen zo snel mogelijk contact met u op.

Sorry, we kunnen helaas niet met zekerheid vaststellen of je een mens of een geautomatiseerde bot/spammer bent. Hierdoor kunnen we het formulier dat je hebt ingevuld niet verzenden. Probeer het opnieuw of neem direct contact op met de makelaar via e-mail.

Er is iets mis gegaan met het versturen van het formulier.
Controleer of u alle velden (goed) heeft ingevoerd en probeer het nog een keer.

Wilt u een bezichtiging plannen?

recaptcha
reCAPTCHA
PrivacyTerms

Liever telefonisch contact?

Wij zijn bereikbaar op werkdagen tussen 8:30 en 17:00 op
015 - 213 51 39.

Vergelijkbare woningen