Westplantsoen 54

2613 GM, Delft ( gelegen in de wijk Hof van Delft )


Omschrijving

Aan de rand van het Wilhelminapark, in de populaire Hof van Delft wijk, bieden wij deze sfeervolle dubbele bovenwoning te koop aan. De woning is voorzien van een drietal slaapkamers, ruime woonkamer met nette open keuken, een tweetal balkons en diverse originele details. In de directe omgeving liggen een aantal buurtwinkels en de Albert Heijn. Daarnaast bevindt zich in de wijk ook het sportfondsenbad en verscheidene basisscholen. NS centraal station en de bruisende binnenstad zijn binnen 5 minuten fietsen te bereiken.

De indeling is als volgt:

Begane grond:
Entree, hal met origineel tegelwerk, glas in lood en trapopgang.

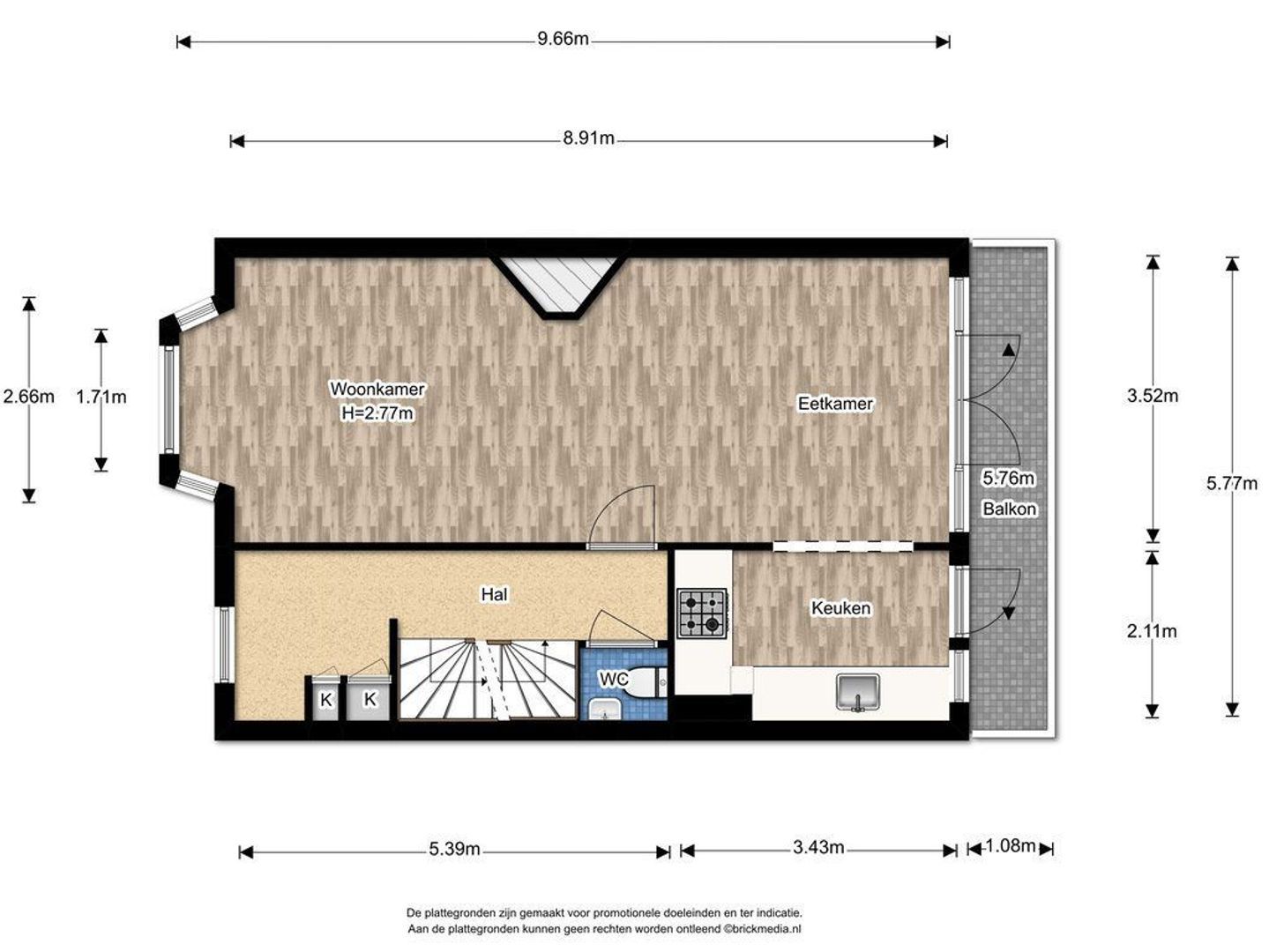
1e verdieping:
Overloop met toilet en garderobe kamertje welke bij de overloop is betrokken. Ruime woonkamer (voormalig en suite) met geïsoleerde laminaatvloer, dubbele schouw en aan de voorzijde een sfeervolle erker met leuk uitzicht over het Westplantsoen. Aan de achterzijde is er een open verbinding met de nette keuken. Deze keuken is voorzien van een vaatwasser, koelkast, 4 pits gaskookplaat, afzuigkap en een combioven. Zowel via de keuken als via de openslaande deuren in de achterkamer is er toegang tot het balkon.

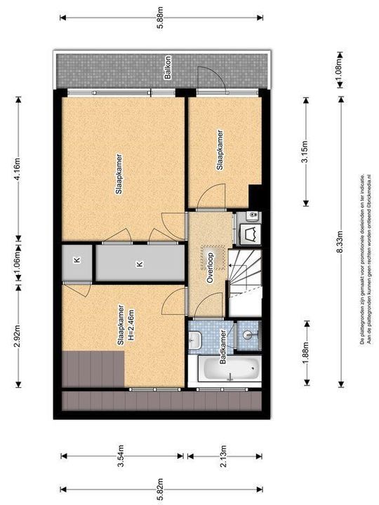
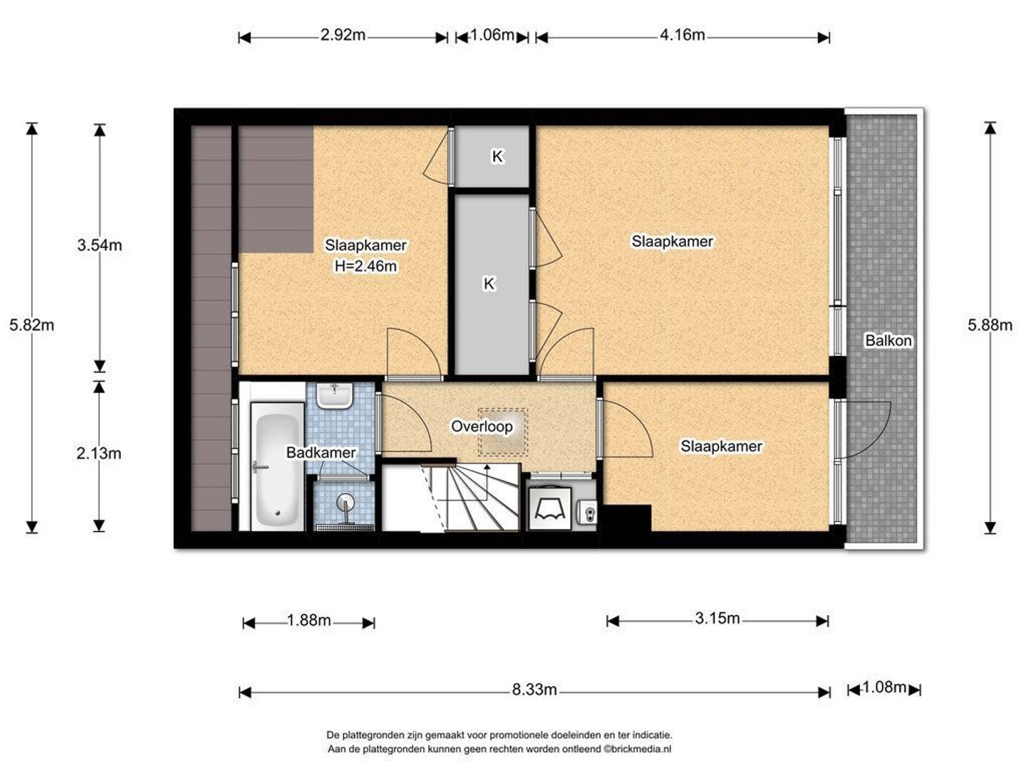
2e verdieping:
Overloop met praktische bergkast met wasmachineaansluiting en opstelplaats van de CV HR combiketel. Slaapkamer achterzijde met openslaande deuren naar het balkon. Hoofdslaapkamer met vaste kast.
Nette badkamer aan de voorzijde met douche, ligbad en wastafel. Derde slaapkamer aan de voorzijde welke tevens is voorzien van een vaste kast.

Bijzonderheden:
- Gebruiksoppervlakte woonfunctie 103 m2, inhoud 349 m3.
- Eigen (fietsen)berging aan de achterzijde.
- Slapende VVE, wel ingeschreven bij de KVK.
- Tweetal balkons over de gehele breedte van de woning.
- Gedeeltelijk voorzien van dubbele beglazing.
- 5 zonnepanelen.
- Energielabel D.
- Ouderdomsclausule van toepassing.
- Niet bewonersclausule van toepassing.
- Er is geen roerende zakenlijst.
- Er is geen vragenlijst.

Interesse in dit huis? Schakel dan direct uw eigen NVM-aankoopmakelaar in. Uw lokale NVM aankoop-makelaar komt op voor uw belangen en bespaart u tijd, geld en zorgen.

Kenmerken

Overdracht

Vraagprijs
€ 500.000 k.k.
Status
Beschikbaar
Oplevering
In overleg

Oppervlakten en inhoud

Woonoppervlakte
103m²
Inhoud
349m³

Bouw

Soort appartement
Bovenwoning, Dubbel bovenhuis
Woonlaag
1
Soort bouw
Bestaande bouw
Bouwjaar
1935
Onderhoud binnen
Goed
Onderhoud buiten
Goed

Indeling

Aantal kamers
4
Aantal slaapkamers
3
Aantal verdiepingen
2

Energie

Energielabel
D
Isolatie
Gedeeltelijk dubbel glas
Warm water
C.V.-ketel

Buitenruimte

Ligging
Aan park, Aan rustige weg, In woonwijk, Vrij uitzicht
Balkon
Ja
Schuur
Vrijstaand hout

Garage

Soort
Betaald parkeren, Parkeervergunning

Locatie

[{"address": "Westplantsoen54","zipCode": "2613 GM","city": "Delft","lat": 52.0076156,"lng": 4.3472912,"heading": 0,"pitch": 0}]

Plattegronden

Westplantsoen 54, Delft plattegrond-0
Westplantsoen 54, Delft plattegrond-1
Westplantsoen 54, Delft plattegrond-2
Westplantsoen 54, Delft plattegrond-3
  

Maak een afspraak voor een bezichtiging

Vul het onderstaande formulier in en we nemen zo snel mogelijk contact met u op.

Uw bericht is naar ons verzonden. Wij nemen zo snel mogelijk contact met u op.

Sorry, we kunnen helaas niet met zekerheid vaststellen of je een mens of een geautomatiseerde bot/spammer bent. Hierdoor kunnen we het formulier dat je hebt ingevuld niet verzenden. Probeer het opnieuw of neem direct contact op met de makelaar via e-mail.

Er is iets mis gegaan met het versturen van het formulier.
Controleer of u alle velden (goed) heeft ingevoerd en probeer het nog een keer.

Wilt u een bezichtiging plannen?

recaptcha
reCAPTCHA
PrivacyTerms

Liever telefonisch contact?

Wij zijn bereikbaar op werkdagen tussen 8:30 en 17:00 op
015 - 213 51 39.

Vergelijkbare woningen