Derde Werelddreef 131

2622 HD, Delft ( gelegen in de wijk Tanthof west )


Omschrijving

In Tanthof West bieden wij te koop aan een keurig verzorgde 3 kamer benedenwoning met heerlijke zonnige tuin aan de voorzijde, op het zuid westen gelegen. Deze parterre is netjes onderhouden.

In de directe omgeving van de woning ligt recreatiegebied Midden Delfland met wandel- en fietsroutes, golfbaan, manege, zwembad en diverse sportverenigingen. Gunstig gelegen nabij scholen, supermarkt, kinderboerderij, ziekenhuis, uitvalswegen en openbaar vervoervoorzieningen. Daarnaast ligt de historische binnenstad op 10 minuten fietsafstand.

De indeling is als volgt:

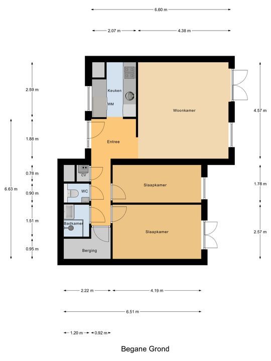
Begane grond:
Afgesloten hoofdentree met hal en toegang naar de appartementen. Entree appartement met hal, toilet en toegang naar de woonkamer. Vanuit de woonkamer is, middels openslaande deuren de zonnige tuin op het zuid westen te bereiken welke beschikt over een "achterom" richting de straatzijde. Voorts 2 slaapkamers aan dezelfde zijde waarvan de hoofdslaapkamer tevens toegang biedt tot de tuin. Vanuit de hal is de dichte keuken te bereiken, deze is voorzien van een 4 pits gaskookplaat, re circulatie afzuigkap, oven, koel/vries combinatie, vaatwasser en de plek voor de wasmachine. Moderne badkamer met douche en wastafelmeubel. Aparte kast met opstelplaats voor de CV ketel (bouwjaar 2019) en een praktische inpandige berging.

Bijzonderheden:
Eigen grond.
Bouwjaar 1985.
Gemeenschappelijke fietsenberging begane grond.
Geheel dubbel glas.
Actieve VVE, maandelijkse bijdrage € 216,=.
CV ketel bouwjaar 2019.
Energielabel C.
Niet bewonersclausule van toepassing.

Interesse in dit huis? Schakel dan direct uw eigen NVM-aankoopmakelaar in. Uw lokale NVM-aankoopmakelaar komt op voor uw belangen en bespaart u tijd, geld en zorgen. Adressen van NVM Aankoopmakelaars vindt u op Funda.nl

Kenmerken

Overdracht

Vraagprijs
€ 340.000 k.k.
Status
Beschikbaar
Oplevering
In overleg

Oppervlakten en inhoud

Woonoppervlakte
60m²
Inhoud
198m³

Bouw

Soort appartement
Benedenwoning, Appartement
Woonlaag
1
Soort bouw
Bestaande bouw
Bouwjaar
1985
Onderhoud binnen
Goed
Onderhoud buiten
Goed

Indeling

Aantal kamers
3
Aantal slaapkamers
2
Aantal verdiepingen
1

Energie

Energielabel
C
Isolatie
Dubbel glas
Warm water
C.V.-ketel

Buitenruimte

Ligging
In woonwijk
Tuin
Voortuin
Voortuin
Zuidwest, 27m², 958×280cm

Garage

Soort
Openbaar parkeren

Locatie

[{"address": "Derde Werelddreef131","zipCode": "2622 HD","city": "Delft","lat": 51.9811371,"lng": 4.3476697,"heading": 0,"pitch": 0}]

Plattegronden

Derde Werelddreef 131, Delft plattegrond-0
Derde Werelddreef 131, Delft plattegrond-1
Derde Werelddreef 131, Delft plattegrond-2
Derde Werelddreef 131, Delft plattegrond-3
  

Maak een afspraak voor een bezichtiging

Vul het onderstaande formulier in en we nemen zo snel mogelijk contact met u op.

Uw bericht is naar ons verzonden. Wij nemen zo snel mogelijk contact met u op.

Sorry, we kunnen helaas niet met zekerheid vaststellen of je een mens of een geautomatiseerde bot/spammer bent. Hierdoor kunnen we het formulier dat je hebt ingevuld niet verzenden. Probeer het opnieuw of neem direct contact op met de makelaar via e-mail.

Er is iets mis gegaan met het versturen van het formulier.
Controleer of u alle velden (goed) heeft ingevoerd en probeer het nog een keer.

Wilt u een bezichtiging plannen?

recaptcha
reCAPTCHA
PrivacyTerms

Liever telefonisch contact?

Wij zijn bereikbaar op werkdagen tussen 8:30 en 17:00 op
015 - 213 51 39.

Vergelijkbare woningen