Vulcanusweg 259 C

2624 AV, Delft ( situated in the Voorhof Neighbourhood )

Description

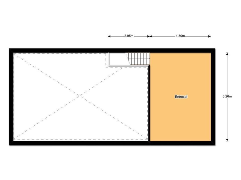
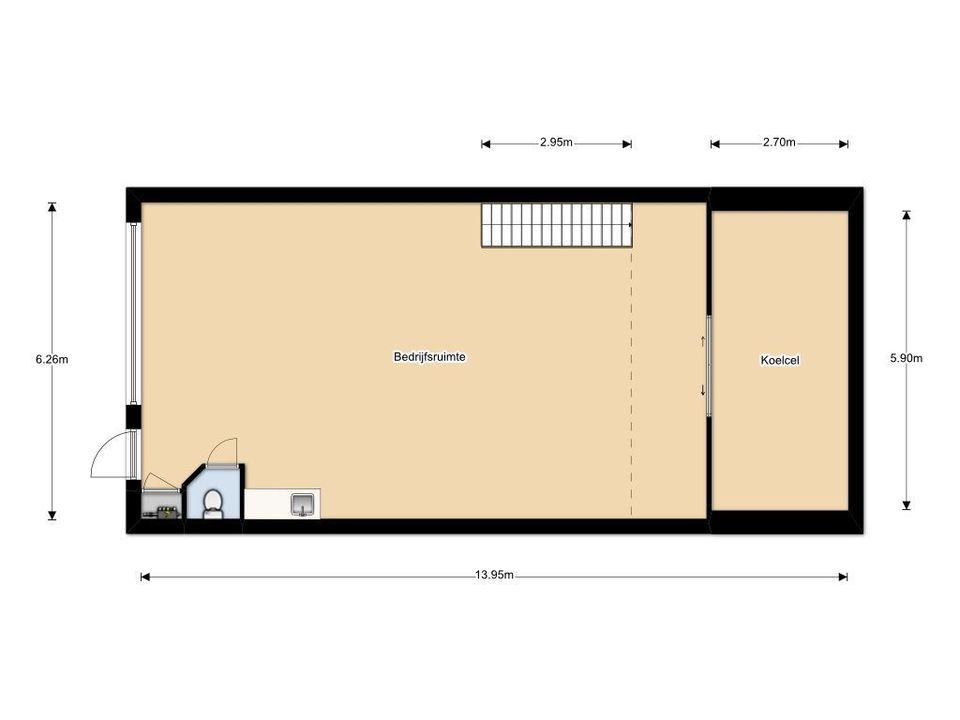
Bedrijfshal met moderne koelcel en opslag op etage, totaal 140m2 waarvan 105m2 hal met koelcel en 35m2 verdieping.
Deze moderne hal is voorzien van eigen g/w/e aansluitingen, electrische overheaddeur, pantry en een toilet.

Een fijne plek welke goed te bereiken is en een gebruiksklare unit.

Bereikbaarheid:
Het object is vanaf de A-13 (Den Haag-Rotterdam v.v.) en A-4 (Den Haag- Amsterdam v.v.) via de Voorhofdreef en de Kruithuisweg eenvoudig binnen enkele minuten bereikbaar.

Koelcel is in goede staat en onderhoud en/of vervanging is geheel voor rekening huurder.

Huurperiode:
termijnen in overleg met verhuurder

Huurbetaling:
Per maand vooruit

Huurovereenkomst:
Standaard huurovereenkomst ROZ, alsmede de daarbij behorende algemene bepalingen.

Huurprijsaanpassing:
Jaarlijks, op basis van de wijziging van het maand-prijsindexcijfer volgens de consumentenprijsindex reeks CPI-alle huishoudens.

Zekerheidstelling bij huur:
Bankgarantie of waarborgsom ter grootte van minimaal drie maanden huurverplichting en de over het totaal verschuldigde BTW.

Alle door ons verstrekte informatie is geheel vrijblijvend. Ondanks de zorg die wij aan de informatie besteed hebben, aanvaarden wij geen aansprakelijkheid voor schade als gevolg van onvolledigheid, actualiteit of onjuistheid.
Bovenstaande informatie mag niet worden beschouwd als een aanbieding of offerte.

Details

Transfer

Price
€ 1.425 p.m.
Status
Rented with conditions

Build

Main allocation
Business space
Other allocation(s)
Production hall
Year of construction
2001-2010
Maintenance inside
Good
Maintenance outside
Good

Surfaces

Total surface
140m²
Units from
140m²
Free height
500cm
Free width
7cm

Layout

Facilities
Overhead doors

Surroundings

Location
business, city center, residential area
Parking uncovered
2 Parking spots

Location

[ { "address": "Vulcanusweg 259", "zipCode": "2624 AV", "city": "Delft", "lat": 51.9969476, "lng": 4.36079, "heading": 0, "pitch": 0 } ]

Floor plans

Vulcanusweg 259 C, Delft plattegrond-0
Vulcanusweg 259 C, Delft plattegrond-1
  

Contact us

Fill in the form below and we will contact you as soon as possible.

The form has successfully been sent. We wil contact you as soon as possible.

Unfortunately we can not conclusively determine whether you are a human or an automated bot/spammer. Hence, we are unable to submit the form. Please retry or contact the real estate agent directly via email.

Something went wrong while sending the contact form. Check if you correctly filled in all required fields and try again.

Do you want to schedule a tour?

recaptcha
reCAPTCHA
PrivacyTerms

Rather call?

We are available on business days between 9:00 and 17:30 on
015 - 213 51 39.