Hugo de Grootstraat 298

2613 VC, Delft ( situated in the Hof van Delft Neighbourhood )


Description

In de gewilde Hof van Delftwijk bieden wij te koop aan een bijzonder leuke 4 kamer dubbele bovenwoning met balkons en een royaal zonnig dakterras. Dit appartement komt uit de verhuur en is keurig netjes onderhouden. Het betreft hier eigenlijk 2 studio's verdeeld over 2 verdiepingen. De ligging is zeer gunstig met diverse buurtwinkels, scholen, parken, het openbaar vervoer, NS station en de uitvalswegen in de directe nabijheid. Ook de binnenstad ligt op een steenworp afstand; letterlijk de straat uitrijden/lopen dan sta je middenin het bruisende centrum met tal van leuke restaurantjes, cafés, terrassen, pleintjes, maar ook theater, kunst en cultuur.

De indeling is als volgt:

Begane grond:
Entree met trap naar de 1e verdieping met overloop.

1e verdieping:
Entree van het appartement met kleine hal en toilet. Kamer en suite met schuifseparatie. Aan de achterzijde bevindt zich eetkamer met schouw en de open keuken welke is voorzien van enige inbouwapparatuur. Vanuit dit gedeelte is het balkon bereikbaar. Aan de voorzijde ligt de woonkamer met erker en toegang naar de badkamer. Deze badkamer is voorzien van een ligbad en een wastafel.

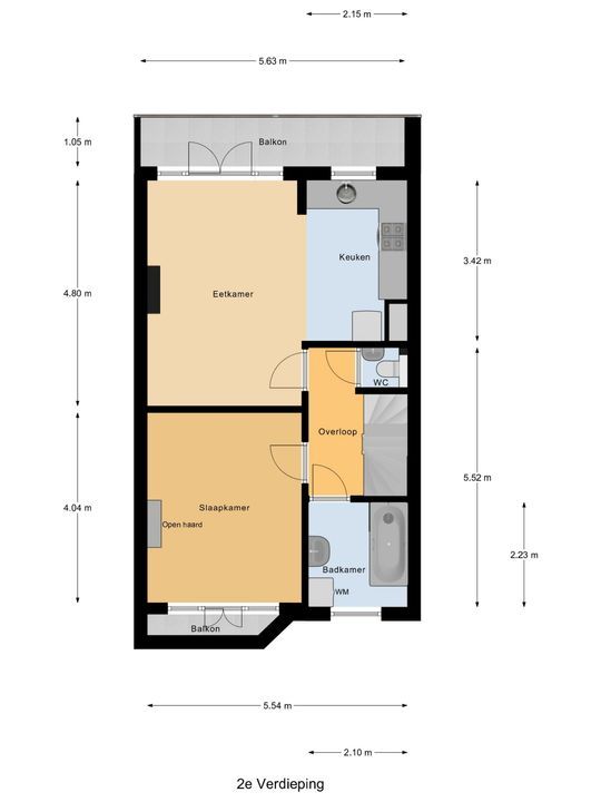
2e verdieping:
Deze verdieping beschikt over een ruime overloop met toilet. Vanuit de overloop is aan de achterzijde de eet/woonkamer te bereiken. Deze beschikt over een open keuken voorzien enige inbouwapparatuur. Middels openslaande deuren is het balkon bereikbaar. Aan de voorzijde ligt de slaapkamer met schouw en openslaande deuren naar een klein balkon. Vanuit de overloop is de badkamer aan de voorzijde te bereiken, deze beschikt over een ligbad, een wastafel en de wasmachineaansluiting. Tevens is er vanuit de overloop een vaste trap naar het heerlijke ruime en zonnige dakterras met een geweldig zicht op Delft.

Bijzonderheden:
Bouwjaar 1934.
Gebruiksoppervlakte wonen 103 m2.
Bruto inhoud 350 m3.
Slapende VVE, wel inschrijving KvK en gezamenlijke opstalverzekering.
gedeeltelijk dubbel glas.
Energielabel D.
Niet bewonersclausule.
Ouderdomsclausule.
Oplevering kan direct.

Interesse in dit huis? Schakel dan direct uw eigen NVM-aankoopmakelaar in. Uw lokale NVM-aankoopmakelaar komt op voor uw belangen en bespaart u tijd, geld en zorgen. Adressen van NVM Aankoopmakelaars vindt u op Funda.nl
















.

Details

Transaction

Price
€ 450.000 k.k.
Status
Available
Acceptance
In consultation

Surface and volume

Living surface
103m²
Volume
350m³

Build

Apartment type
Upper floor apartment, Double upstairs house
Bottom floor
1
Build type
Existing
Build year
1934
Maintenance inside
Good
Maintenance outside
Good

Layout

Rooms
4
Bedrooms
2
Number of floors
2

Energy

Energy label
D
Isolation
Insulated glazing
Hot water
Central heating

Exterior areas

Location
In residental area
Balcony
Yes
Garden
Terrace
Terrace
Southwest, 18m², 393×464cm

Garage

Type
Parking permit

Location

[{"address": "Hugo de Grootstraat298","zipCode": "2613 VC","city": "Delft","lat": 52.0073539,"lng": 4.3482003,"heading": 0,"pitch": 0}]

Floor plans

Hugo de Grootstraat 298, Delft plattegrond-0
Hugo de Grootstraat 298, Delft plattegrond-1
Hugo de Grootstraat 298, Delft plattegrond-2
Hugo de Grootstraat 298, Delft plattegrond-3
Hugo de Grootstraat 298, Delft plattegrond-4
Hugo de Grootstraat 298, Delft plattegrond-5
Hugo de Grootstraat 298, Delft plattegrond-6
Hugo de Grootstraat 298, Delft plattegrond-7
  

Contact us for a viewing

Fill in the form below and we will contact you as soon as possible.

The form has successfully been sent. We wil contact you as soon as possible.

Unfortunately we can not conclusively determine whether you are a human or an automated bot/spammer. Hence, we are unable to submit the form. Please retry or contact the real estate agent directly via email.

Something went wrong while sending the contact form. Check if you correctly filled in all required fields and try again.

Do you want to schedule a tour?

recaptcha
reCAPTCHA
PrivacyTerms

Rather call?

We are available on business days between 9:00 and 17:30 on
015 - 213 51 39.

Related houses